むつ市柳町一丁目 空き家

 
 

 

物件所在地 むつ市柳町一丁目4番21号
売却・賃貸の別 売却
売却希望価格 10,000,000円(応相談)






構造 木造
種類 居宅
土地面積 208.26㎡
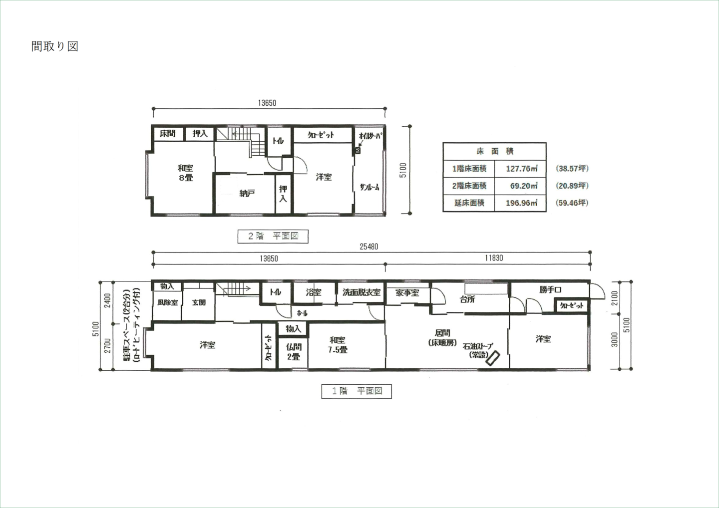
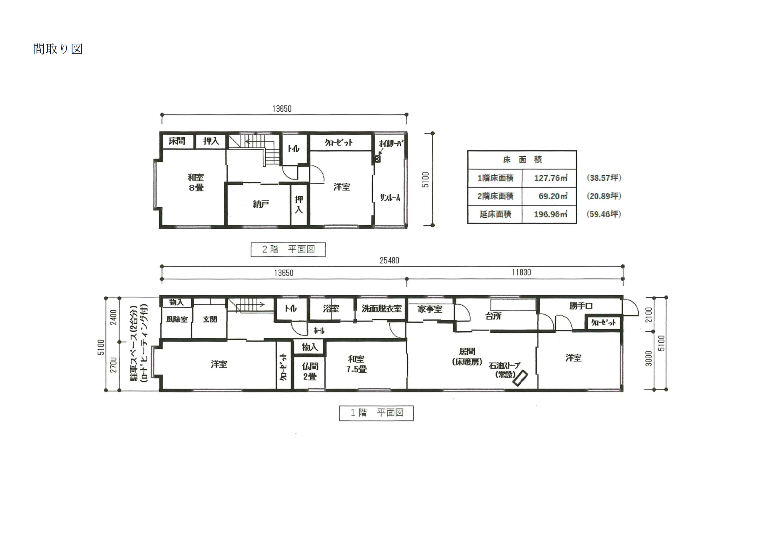
建物面積 1階 127.76㎡
2階   69.20㎡
建築時期 平成14年(築22年)
用途地域 商業地域




電気 引き込み済み
ガス プロパンガス
水道 上水道
風呂 灯油
トイレ 水洗・洋式
排水 下水道
駐車場 あり(2台)
登記 あり
抵当権 なし
特記事項 ・電気式ロードヒーティング設備あり(玄関前駐車スペース)
・床暖房(1階居間)
・石油ストーブ(1階居間 常設)
・オイルサーバー設備あり(2階)




 

むつ市新町 空き家

 
 

 

物件所在地 むつ市新町30番3号
売却・賃貸の別 売却
売却希望価格 500,000円(応相談)






構造 木造
種類 居宅
土地面積 1304.55㎡
建物面積 1階   90.97㎡
2階   52.99㎡
建築時期 昭和49年(築52年)
用途地域 第2種中高層住居専用区域




電気 引き込み済み
ガス プロパンガス
水道 井戸(地下水)
風呂 灯油
トイレ 汲み取り・和式
排水 下水道
駐車場 あり(2台)
登記 あり
抵当権 なし
特記事項 ・土地は借地になっており、地主はむつ市内の方で共有地です。
・借地面積は概ね320㎡、賃料は月額7,000円となっています。
・家財は残っていますが、契約成立後、売主側で処分する予定です。
・融雪屋根となっています。
・売却金額については相談に応じます。




 

むつ市横迎町一丁目 売地

 
 

 

価格

150万円

坪単価

2.50万円

面積

198.34㎡(約60坪)

種別

売地

所在地

むつ市横迎町一丁目

学区

第一田名部/むつ

地目

宅地

現況

更地

道路位置

北西側(42条2項道路)

用途地域

一種中高層

建蔽/容積

60%/200%

ガス

 

水道

公営水道

取引態様

仲介